[最新] ユニット バス 天井 高 206572-ユニット バス 天井 高 さ
TOTOシステムバス(お風呂・ユニットバス・システムバス)リフォーム工事 古河市SK様、この度はホームページからの工事依頼ありがとうございます!!! 今後共よろしくお願いいたします。 今回 ユニットバスの天井裏って? 覗いてみると断熱材が中途半端だった。 こんばんは、はっちです^^♪ 先日、近くのハウジングセンターに、流行語大賞を取った「日本エレキテル連合」が来ていました(ノ´ `)ノ 「みたい~ ( ̄  ̄*)」 と娘の要望によりユニットバスは、totoとリクシルで検討。 浴槽の形やほっからり床のフカフカした感じが気に入り、totoにしたいなと思っていました。 が、ここでもまた天井がネックに(涙) totoの物だと、天井に全く納まらないというのです。ユニットバスの天井裏の構造
集合住宅用ユニットバス Bwシリーズ リクシル Lixil 8月はエントリーで全品p10倍 1216 プランbw05f Bw 1216lbe H Hn735 C Kenzai Brl システムバス アクセント張りb面 鏡面 爆安プライス ストーンモザイクダーク
ユニット バス 天井 高 さ
ユニット バス 天井 高 さ- 現在ほとんどの住宅に採用されているユニットバスは高さ180~0cmが主流となっているため、他の居室に比べて天井が低いと感じられます。 しかし、室温を保つためには多少天井が 低いほうが快適 かもしれません。 ② 浴室の天井の高さ、窓、ドアの寸法を測る。メモ用紙に窓とドアの位置も一緒に書き込んでおきましょう。 ※マンションに多いのですが、天井が平らではなく、梁がある場合は梁の寸法も測る。 ③ 内寸からユニットバスのおおまかなサイズを選びます。



2fユニットバス解体後 勾配天井 天井高00 Lixilアライズ組立前 小野田 大輔 Okuta リフォーム マンションリフォームならlohas Studio ロハススタジオ Presented By Okuta オクタ
ユニットバスの点検口から天井裏へGO! ご自宅のユニットバスの天井をご覧いただくと、点検口が必ずあります 天井が一部分だけくり抜いてあって、その部分が蓋のようになって収まっているはずです では手順の説明をしていきたいと思います 1・脚立ユニットバスは戸建て用とマンション用に分かれています。 戸建てとマンションでは、浴室の床下や天井の高さに違いがあるためです。 一部のマンション用ユニットバスを戸建てに設置することはできますが、戸建て用のユニットバスをマンションに設置することはありません。 戸建て用のユニットバスは、坪で表記されています。 坪数は通常「尺モジュール」を基準としています。 尺モジュール 建設会社「天井付けの浴室暖房乾燥機つけたらユニットバスの天井高が1900を切ります。」 我が家の夫は180cm弱あります、そんな人が185cmの天井高UBに入るとこうなります。 まともにシャワーも浴びれない、 正直一番の問題なのでは?
天井を高くするだけで、ひろびろ開放感のある、快適なバスルームに シンラは天井高さアップ(高さ2300mm)に対応可能。 従来の高さ2150mmから、天井を150mm高くするだけで、浴室がさらに広く感じられます。 ひろびろバスルーム 1717(1坪)サイズ 1317(075坪強)サイズ もとの坪数はそのままに浴槽も洗い場もさらにひろびろ。 浴室と外壁の間のデッドスペースを最小限に抑えた独自のユニットバス(システムバス)・浴室 天井 天井 Movie 清掃性実験 高光沢フラット VS フラット 高光沢フラット天井 照明や外光を反射してきらめく、光沢が美しい天井です。 表面がとてもなめらかなので、汚れが付きにくくお手入れも簡単です。 価格 フラット天井 見た目がシンプルで清潔感のある、フラットタイプの天井です。 価格 Recommen 照明 浴室暖房乾燥機 Catalog システムバスカタロ 調べてみたら、ユニットバスは浴槽の下と天井の上にもスペースを必要とするため、だいたい2400~2500mmは高さが必要になっています。 しかし、理由ある場所は天井が低く、約mmあるかないかです。 一応、この高さに収まるユニットバスは、リクシルさんから「BQ―0817(? )」というボックス型のが出ているようですが、このタイプは初めから四角い状態
ユニットバス は規格品なので、住まいによっては設置できなかったり、逆に費用がかさむケースがあります。 たとえば、浴室の形が変形していたり、天井が高いお宅の場合、 ユニットバス を設置する時に間取り変更など大掛かりな工事が必要です。 また、浴槽の形や窓の位置、天井の高さなどを、ご自分の思い通りに変えたいと思われている方には ユニットバス は向いていません。 たとえば、埋め以前の ユニットバス は、およそどのメーカーでも 天井高は1種類で2m程のものが主流でした。 最近では、規格寸法のバリエーションが増えただけでなく、 据付空間に合わせて、製作できるものもでてきました。 今回の浴室 リフォーム では新旧共、 ユニットバスの短手の室内寸法は1,400㎜と同じですが、 長手は1,800㎜から1,600㎜へと0㎜狭くなります。 室内空間の広がりは高さも影響するの天井 ユニットバスの天井の材質は壁パネルと同じ材質のものがほとんどです。 換気扇等のメンテナンスのため必ず天井点検口がついています。 基本的には色は白のみですが、一部のメーカーの一部の商品で色を選べるものもあります。



1996 号 勾配低天井部用ユニットバス設置構造 Astamuse



楽天市場 リクシル アライズ 1616 Eタイプ 標準仕様 戸建て用システムバスルーム クローバーマート
シャワーユニットns 大家族や2世帯住宅のセカンドバスに最適。心も体も躍る、ワンランク上のくつろぎを実現したシャワーユニット。 価格帯:523,000円(0812サイズ)~1,172,000円(0914サイズ) サイズ 0812 / 0912 / 0914 機能 エコアクアシャワー;これが何故か 戸建て住宅にマンション用のユニットバスを入れる場合、営業マンの思い込みで00mmの天井高のユニットバスが入っていることがあります 。これは勿体ないですよね。 マンションでは通常は天井高00mmのユニットバスしか入りません。 ユニットバスのサイズには、戸建て用とマンション用の2種類が用意されているのは何故でしょうか。 実は、戸建ての浴室はマンションの浴室と比較すると床下や天井部分が高くなっていることがあるのです。 逆に、マンションの浴室は床下や天井の高さが低めの構造のものが多いとされています。 具体的な数字を挙げてみますと、戸建てのユニットバス内の有効高さ寸法は



マンションリモデルバスルーム Whシリーズ ユニットバス 51 Off Toto Tタイプ マンションリモデルバスルーム Tタイプ Toto 1216 システムバス ユニットバス Toto 1216サイズ クローバーマート最安値に挑戦 Tタイプ



ユニットバスのカウンターを無くしたために起きた事件 ため城
戸建ての浴室はマンションの浴室に比べて、床下や天井が高くなっていることがあります。 一方、マンションの浴室は床下や天井の高さが低めな造りが多くなっています。 従って、床下サイズやユニットバスの高さの違いがマンション用と戸建用のサイズの違いとなっています。 また、戸建て用のユニットバスは同じサイズでも小さいことがあります。 例えば1216(1cm×160cm)サこれも元々の構造上の問題なので、ユニットバスの天井高を下げたり、換気扇等のサイズ変更や位置変更などで対応することになります。 それらで対応できない場合はユニットバスが設置できないという判断をすることになります。 梁対応 ユニットバスの壁際に建物の梁が干渉する場合がありますが、その場合は「梁カット部材」と呼ばれるオプション部材を使って対応することになります。 ただし、梁の大きさによっては梁カット部材で対応できないケースがまれにあります。 その場合はユニットバスの天井高74.システムバスの基礎 4 浴槽パン無し仕様時の作業手順 75.入口踏込み高さ 4 8.洗場の設置 Ⅷ 必要工具一覧 5 (1)洗場の事前準備 70 Ⅸ 下台部品構成図 (2)洗場パン設置 uza・16・s12(frp洗場、浴槽パン無し) 8 (3)洗場トラップの取付 85



システムキッチン ユニットバス ユニットバス シャワーユニット Lixil Inax ユニットバスルーム 1014サイズ Bw 1014lbe パネルカラー選べます



ユニットバス 納まり図



Toto システムバスルーム シンラ Bタイプ1616 1坪サイズ Hkv1616ubx4 写真セット ユニットバス ソウケン ネット販売部高 品質 爆買い



07 号 ユニットバスの納まり構造 Astamuse



ユニットバスのサイズについて Blog 兜一級建築士事務所の日々のこと 業務のこと 暮らしのこと



パナソニックのlクラスバスルームの機能やデザインは リフォーム対応もご紹介 ハピすむ



介護ゆとりっくす 介護用オーダーメイドユニットバス システムバス 浴槽 商品ラインナップ ダイワ化成株式会社



システムバス ユニットバス Toto リモデルバスルーム Whvシリーズ 1014サイズ 内寸1000 1400ミリ Stype シンプルタイプ 住設ショップ



集合住宅用ユニットバス Bpシリーズ リクシル Lixil 集合住宅用システムバス 1116 Bp 1116lbze A H Hn735 アクセント張り 鏡面 買い取り ストーンモザイクダーク Rl C ユニットバス



浴室の天井を塗装する 塗料選びやdiyの方法とは フローリング補修 壁穴修理 ドア穴 補修屋紹介マッチングサイト リペアスペース Repairspace



楽天市場 ユニットバス システムバスルーム Lixil リクシル アライズ cタイプ S1818 メーターモジュール サイズ アクセント張りb面 戸建用 浴槽 浴室 お風呂 リフォーム Kenzai 建材百貨店



個別 の写真 画像 Sebonko S Fotolife



ユニットバス スパージュ Pxタイプ 1318 1300mm 1800mm サイズ 全面張り 戸建1階用 システムバスルーム リクシル Lixil 高級 浴槽 浴室 お風呂 リフォーム Badw 1318lbpx リフォームおたすけdiy 通販 Yahoo ショッピング



フェリテ システムバス フェリテ ユニットバス 戸建て用 戸建て用 基本仕様 スタイルu システムバス 1216 Ub H 213 クローバーマート



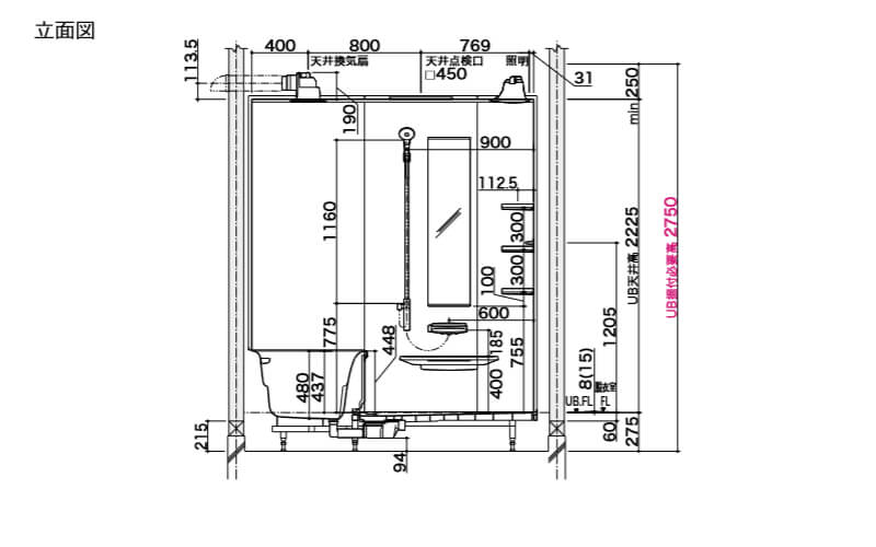
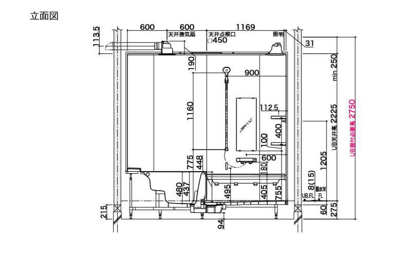
ユニットバス 1216 図面



初心者のための浴室リフォームの現場調査 Point4 リフォマガ



お風呂リフォーム 枚方 寝屋川 交野のリフォームならキュート ラボ



物件を読むコツ教えます Vol 16 団地の浴室 2 Ecodecoブログ



ユニットバス システムバスルーム Lixil リクシル アライズ mタイプ 16 1 25坪 サイズ アクセント張りb面 戸建用 浴槽 浴室 お風呂 リフォーム リフォームおたすけdiy



2fユニットバス 関西 勾配天井 天井高00アライズ 小野田 大輔 Okuta リフォーム マンションリフォームならlohas Studio ロハススタジオ Presented By Okuta オクタ



Lixil 戸建て用システムバスルーム アライズ Arise Kタイプ 1618 標準仕様 住設機器の卸売販売ショップ クローバーマート



マンションリフォームとハーフユニットバス マスタープラン一級建築士事務所



ユニットバスが入らないと言われました Npo住宅110番 住まいの悩み 建築への疑問 トラブル相談



Toto 戸建用 ユニットバス サザナ1616 Nタイプ Htv1616unx1 送料無料 Htv1616unx1 Malukoh Shopping 通販 Yahoo ショッピング



マンションの在来浴室をユニットバスに変更 天井高を高くしたい リフォームを成功させるポイント From杉並区



梁や柱があってもリフォームok 2 5cm刻みでサイズオーダーできる ぴったりサイズシャワーユニット タカラスタンダード



最新人気 システムバスルーム スパージュ Pxタイプ 1624 1600mm 2400mm サイズ 全面張り 戸建1階用ユニットバス リクシル Lixil 高級 浴槽 浴室 お風呂 リフォーム Kenzai Thekosherphone Org



リフォーム 山梨



マンション在来浴室をユニットバスに変更 浴室内の高さを確保 リフォームを成功させるポイント From杉並区



キッチン ユニットバスのリフォーム前にショールームに行くべき リフォームの参考書



システムバスルーム スパージュ Cxタイプ 1418 1400mm 1800mm サイズ 全面張り マンション用 ユニットバス リクシル Lixil 高級 浴槽 浴室 お風呂 リフォーム Bamw 1418lbcx リフォームおたすけdiy 通販 Yahoo ショッピング



低い天井とは何 なのか グループアプローチ建築設計事務所



マンション ユニットバス 施工事例 Toto 札幌



システムキッチン ユニットバス ユニットバス シャワーユニット Lixil Inax ユニットバスルーム 1216サイズ Bw 1216lbe カラーパネル選べます



希望者のみラッピング無料 9月はエントリーでポイント5倍 システムバスルーム スパージュ Bxタイプ 1318 1300mm 1800mm サイズ 全面張り 戸建1階用ユニットバス リクシル Lixil 高級 浴槽 浴室 お風呂 リフォーム 建材屋 希少 黒入荷



注目の 集合住宅用システムバス Bwシリーズ 1014 プランbw06f Bw 1014lbe H C Brl アクセント張りb面 鏡面 プルシャンブルー Hn191 Lixil リクシル ユニットバス Kenzai Seychellespromo Com



2fユニットバス解体後 勾配天井 天井高00 Lixilアライズ組立前 小野田 大輔 Okuta リフォーム マンションリフォームならlohas Studio ロハススタジオ Presented By Okuta オクタ



ユニットバス システムバスルーム Lixil リクシル アライズ zタイプ 1624 1 5坪 サイズ アクセント張りb面 戸建用 浴槽 浴室 お風呂 リフォーム リフォームおたすけdiy



Pr Housetec洋風ハウステック班2階建てバスnjh1014 手水場洗面仕合せ3箇条タイプライタ 貨物輸送無料 Nj続き物 レンタルアパルトマン アパート 旅店向けユニットバス ユニットバス Oceanblueflorida Com



ユニットバス スパージュ Czタイプ 1616 1600mm 1600mm サイズ 全面張り マンション用 システムバスルーム リクシル Lixil 高級 浴槽 浴室 お風呂 リフォーム Bamw 1616lbcz リフォームおたすけdiy 通販 Yahoo ショッピング



リクシル ユニットバス ユニットバス アライズ システムバス 浴室用設備 浴室 アクセント張りb面 16 1 25坪 サイズ eタイプ eタイプ 浴槽 浴槽 お風呂 システムバスルーム リフォーム リフォームおたすけdiy店lixil リクシル Inax イナックス 戸建用システムバス



値引 ユニットバス システムバスルーム Lixil リクシル アライズ eタイプ S1216 0 75坪 サイズ アクセント張りb面 戸建用 浴槽 浴室 お風呂 リフォーム 建材屋 海外正規品 Azadforum Com



ゆとりけあベーシック 介護用ユニットバス 規格サイズ システムバス 浴槽 商品ラインナップ ダイワ化成株式会社



間取り 水周りをちまちま削る 天井高低めの家



ユニットバスのサイズ 自宅にぴったりの大きさやサイズ変更など リフォームまるごと研究所



ユニットバス システムバスルーム Lixil リクシル アライズ タイプ 1618 メーターモジュール サイズ アクセント張りb面 戸建用 浴槽 浴室 お風呂 リフォーム Kenzai Prescriptionpillsonline Is



集合住宅用ユニットバス Bwシリーズ リクシル Lixil 8月はエントリーで全品p10倍 1216 プランbw05f Bw 1216lbe H Hn735 C Kenzai Brl システムバス アクセント張りb面 鏡面 爆安プライス ストーンモザイクダーク



天井を高くしたユニットバスリフォームのご紹介 笑顔でリフォームするなら 株 住まいるパートナー 東京都 練馬区 板橋区 西東京市 埼玉県 朝霞市 和光市 新座市 志木市 周辺



特長 Refoms パナソニック リフォムス バスルーム システムバスルーム Panasonic



初心者のための浴室リフォームの現場調査 Point3 リフォマガ



ハウステック 集合住宅向 ユニットバス Njb 1014サイズ 基本仕様 ユニットバス ハウステック マンション用 ユニットバス



1



Totoユニットバスwy1216 アールテック日記



Lixil 戸建て用システムバスルーム アライズ Arise Mタイプ 1318 標準仕様 住設機器の卸売販売ショップ クローバーマート



toto ユニットバス サザナをマンション用に設置するプラン n s t pタイプ お風呂リフォームなら大阪 堺市のリビングピース



ユニットバス スパージュ Cxタイプ 1416 1400mm 1600mm サイズ 全面張り マンション用 システムバスルーム リクシル Lixil 高級 浴槽 浴室 お風呂 リフォーム Bamw 1416lbcx リフォームおたすけdiy 通販 Yahoo ショッピング



ルーターを風呂場の天井裏に置きたくないので Vlan を使ってみた エムスリーテックブログ



システムバス バスルーム Whシリーズ マンションリモデルバス 標準 システムバス 標準 Sタイプ 1014 システムバス システムバス Toto ユニットバス リフォーム Remodel Wh Basic じゅうせつひるず Com



大注目 Lixil システムバス ユニットバス スパージュ Spage Pxタイプ 1416サイズ 標準仕様 マンション用 クローバーマート Chancen International



ワンランク上の心地良いバスタイムを お風呂 バス ユニットバス Totoの浴室 バスルーム シンラ 戸建て向け



ぴったりコーデ ソフィアスcj バス 商品情報ハウステック



大特価価格 激安 カード決済可 ハウステック ユニットバスルーム 送料無料 Msb0816サイズ



ユニットバスのサイズについて Blog 兜一級建築士事務所の日々のこと 業務のこと 暮らしのこと



パナソニックのユニットバスの特徴をご紹介 こだわり抜いたくつろぎの浴室 リフォーム費用の一括見積り リショップナビ



にこちゃんリフォーム 今治店 ユニットバス ユニットバスの豆知識



天井を高くしたユニットバスリフォームのご紹介 笑顔でリフォームするなら 株 住まいるパートナー 東京都 練馬区 板橋区 西東京市 埼玉県 朝霞市 和光市 新座市 志木市 周辺



なるほど ユニットバスのサイズの見方 快適なサイズとは 失敗しないリフォーム会社選びは リフォームガイド



システムバス ユニットバス Toto リモデルバスルーム Whvシリーズ 1014サイズ 内寸1000 1400ミリ Stype シンプルタイプ 住設ショップ



ユニットバスのサイズ 自宅にぴったりの大きさやサイズ変更など リフォームまるごと研究所



2



100 安心保証 ハウステック システムバスルーム フェリテ スタイルb 1618サイズ 基本仕様 返品送料無料 Kindermomma Com



Toto 介護ユニットバス 激安システムキッチンshop



天井 タカラスタンダード



楽天市場 Toto サザナ Htシリーズ Nタイプ 1317サイズ システムバスルーム オプション対応 メーカー直送 エクセレント建材



ハウステック 分譲 賃貸マンション向 ユニットバス Ll 1216サイズ スタイルs ユニットバス ハウステック Ll Laシリーズ



在来浴室 いよいよ人気ブランド ユニットバスに最適 高須浴室換気乾燥暖房機 100v天井付セラミック型 Bf 231sha



マンションリフォームで気をつけたいこと 浴室 洗面 マンションリフォーム リノベーションのサンリフォーム 大阪 神戸 西宮 吹田 京都 横浜 東京



タカラスタンダードのお風呂 ユニットバス の価格 特徴 リフォーム事例を紹介 リフォーム費用の一括見積り リショップナビ



ユニットバス スパージュ Cxタイプ 1616 1600mm 1600mm サイズ 全面張り マンション用 システムバスルーム リクシル Lixil 高級 浴槽 浴室 お風呂 リフォーム Bamw 1616lbcx リフォームおたすけdiy 通販 Yahoo ショッピング



ハウステック マンション アパート用ユニットバスルーム Njシリーズ Njf1216 基本仕様 住設機器の卸売販売ショップ クローバーマート



ユニットバスの天井高を15cm上げ 開放感が生まれました 浴室 バス リフォーム事例 施工事例 No B1079 リフォーム会社紹介サイト ホームプロ



ワンランク上の心地良いバスタイムを お風呂 バス ユニットバス Totoの浴室 バスルーム シンラ 戸建て向け



Bw 1216lbe 納期 通常2週間程度 Lixil 写真セット Bwシリーズ メーカー直送 オプション変更可 1216サイズ 新品未使用正規品 集合住宅用ユニットバスルーム 送料無料



梁や柱がある浴室リフォームも対応できる ぴったりサイズシステムバス タカラスタンダード



長野市 古民家のユニットバス トイレリフォーム y様 光洋リフォーム リフォームを長野市でするなら



楽天市場 リクシル リノビオ フィット 1115 Nタイプ 標準仕様 マンション用システムバスルーム クローバーマート



高品質 新品 Fy 13ug6v パナソニック 1室換気用 ユニットバス専用 オートルーバー 予備暖房 衣類乾燥 換気 涼風の機能 省スペース設計 ハイパワー 浴室換気乾燥暖房器 バス換気乾燥機 天井埋込形



最終値下 ユニットバス システムバスルーム Lixil リクシル アライズ mタイプ S1216 0 75坪 サイズ アクセント張りb面 戸建用 浴槽 浴室 お風呂 バスルーム リフォーム 戸建て 一軒家 建材屋 期間限定 30 Off Designtegrado Com Br



人気商品再入荷 ユニットバス システムバスルーム Lixil リクシル アライズ eタイプ S1818 メーターモジュール サイズ アクセント張りb面 戸建用 浴槽 浴室 お風呂 リフォーム Kenzai 進化版 Drchibornfree Com



タカラスタンダードのユニットバス お風呂 の特徴を解説 リフォーム 修理なら リフォマ



2階北側のユニットバスは気をつけろ 母屋下がりで大失敗 注文住宅 Architecterの建物わっしょい



初心者のための浴室リフォームの現場調査 Point3 リフォマガ



ユニットバスのサイズ ユニットバス本舗



システムバスルーム スパージュ Bxタイプ 1216 10mm 1600mm サイズ 全面張り マンション用 ユニットバス リクシル Lixil 高級 浴槽 浴室 お風呂 リフォーム Bamw 1216lbbx リフォームおたすけdiy 通販 Yahoo ショッピング



Lixil Inax ユニットバスルーム 1116サイズ Bw 1116lbe パネルカラーお選びいただけます Buyee Buyee Japanese Proxy Service Buy From Japan Bot Online



2



浴室ランドリーパイプを1本追加して2本設することにした理由



システムバスルーム リクシル アライズ タイプ 1616 1坪 サイズ アクセント張りb面 戸建用システムバス ユニットバス 浴槽 浴室 お風呂 リフォーム Mavipconstrutora Com Br



ユニットバス 施工図



ワンランク上の心地良いバスタイムを お風呂 バス ユニットバス Totoの浴室 バスルーム シンラ 戸建て向け
コメント
コメントを投稿